[3-130]
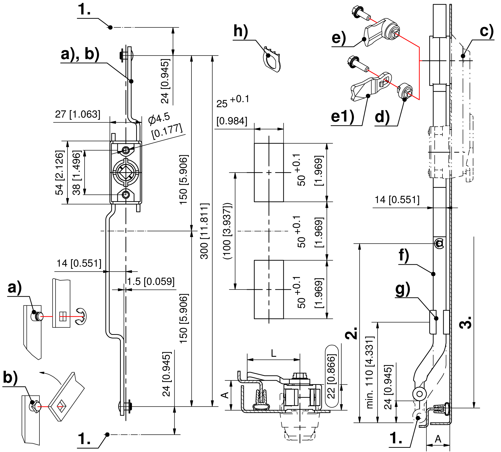
Rod Latch FS PrC












Advantages
- For cutout C.
- For application within the sealed area.
- The latch can be combined with escutcheon, handles or swinghandl.
- RH / LH application through double symmetry.
- Grounding by grounding clip (optional).
Material
- Housing: zinc die, untreated or PA, black
- Pinion: zinc die
- Rods: steel, zinc plated
Remarks
1. stroke 24mm2. length L
3. clearance
Available versions
Rod latch
Product number
Material
Rod fastening
Installation type
Delivery Unit
a)
208-9002.00-00000
zinc die
C-clip
screw-on
1 pc.
a)
208-9052.00-00000
PA
C-clip
screw-on
1 pc.
b)
208-9003.00-00000
zinc die
quick-fit
screw-on
1 pc.
b)
208-9053.00-00000
PA
quick-fit
screw-on
1 pc.
Related Products
Accessories